เข้าสู่ระบบ
หน้าแรก
ตารางออกอากาศ
ชมสด
ชมล่วงหน้า
ชมย้อนหลัง
ข่าวสารและกิจกรรม
เว็บบอร์ด
เกี่ยวกับองค์กร
หน้าแรก
ตารางออกอากาศ
ชมสด
ชมล่วงหน้า
ชมย้อนหลัง
ข่าวสารและบทความ
เว็บบอร์ด
เกี่ยวกับองค์กร
เข้าสู่ระบบ
หน้าแรก
ข่าวประชาสัมพันธ์
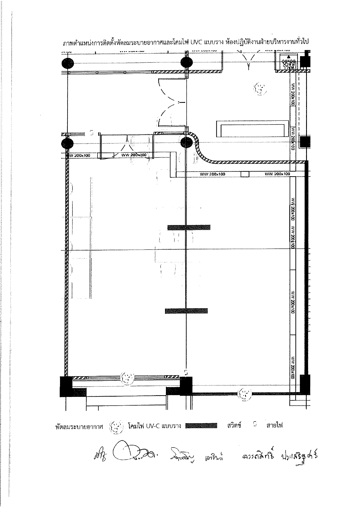
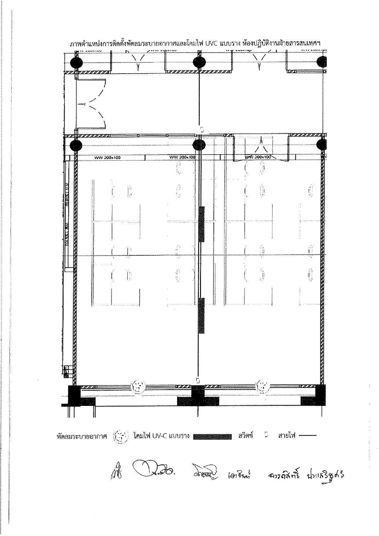
ประกาศสถานีวิทยุโทรทัศน์การศึกษาทางไกลผ่านดาวเทียม เรื่อง สรรหาผู้รับจ้างปรับปรุงห้องปฏิบัติงาน
PR&Info dltv | 27 มี.ค. 2569
135
ประกาศสถานีวิทยุโทรทัศน์การศึกษาทางไกลผ่านดาวเทียม
เรื่อง สรรหาผู้รับจ้างปรับปรุงห้องปฏิบัติงาน ฝ่ายสารสนเทศฯ และฝ่ายบริหารงานทั่วไป
ผู้สนใจสามารถยื่นเสนอราคา พร้อมเอกสารหลักฐาน ณ สถานีวิทยุโทรทัศน์การศึกษาทางไกลผ่านดาวเทียม
ซอยหัวหิน 35 ถ.เลียบวังต.หัวหิน อ.หัวหิน จ.ประจวบคีรีขันธ์ 77110
ตั้งแต่ วันที่ 27 มีนาคม - 2 เมษายน 2569 ในวัน -เวลาราชการ
สอบถามรายละเอียดเพิ่มเติมได้ที่ : ฝ่ายบริหารงานทั่วไป โทร.032-515457-8 ต่อ 1112
ดูรายละเอียดเพิ่มเติม
https://drive.google.com/file/d/1NCG_yGs_SuRQDBo4jN51HjrR3SRw64Px/view?usp=sharing